Projekte
Jedes Projekt ist individuell und hat seine eigenen Schwerpunkte. Wir bedienen eine Vielzahl planerischer Aufgaben in unterschiedlichen Arbeitsfeldern der Stadtplanung. Unsere Devise: Lebenswerte Orte und Städte für ihre Menschen zu schaffen, auch und gerade wenn die Rahmenbedingungen herausfordernd sind. Eine Auswahl abgeschlossener und laufender Projekte finden Sie hier:
Programmbeauftragte Nachhaltige Erneuerung
Unterstützung des Landes Berlin bei der Koordinierung des Förderprogramms, inkl. Programmplanung, Prüfung von Förderanträgen, Öffentlichkeitsarbeit
- Auftraggeber: Senatsverwaltung für Stadtentwicklung, Bauen und Wohnen
- Bearbeitungszeitraum: Laufendes Projekt seit 2010
Bildquelle © Geoportal Berlin/ALKIS/ISU5/SBU, BSM
Gebietsbeauftragte für das Fördergebiet Flughafen Tegel und Umfeld
Integriertes städtebauliches Entwicklungskonzept Brunnenstraße Nord
Bestandsanalyse aller Handlungsfelder der integrierten Quartiersentwicklung, SWOT-Analyse, Erarbeitung eines integrierten städtebaulichen Leitbilds, Erstellung eines Handlungs- und Maßnahmenkonzepts, Plandarstellung, Beteiligung
- Auftraggeber: Bezirksamt Mitte von Berlin
- Bearbeitungszeitraum: 2024 – 2025
Realisierungswettbewerb Grundschule „Geschwister Scholl“ Rathenow
Gebietsbeauftragte für das Fördergebiet in Rathenow
Städtebaulicher und landschaftsplanerischer Wettbewerb S-Bahnquartier Stahnsdorf
Organisation und Durchführung eines offenen städtebaulichen und freiraumplanerischen Wettbewerbs für ein neues Quartier beiderseits des künftigen S-Bahnhofs.
- Auftraggeber: Gemeinde Stahnsdorf
- Bearbeitungszeitraum: Laufendes Projekt seit 2023
Bildquelle © Luftbild: GeoBasis-DE/LGB, dl-de/by-2-0, Geoportal Berlin
Gebietsbeauftragte für das Aktive Stadtzentrum Marzahner Promenade
Quartier Am Humboldthain – Bebauungsplan III-233-1
Schaffung der planungsrechtlichen Voraussetzungen zur umfassenden städtebaulichen Neuordnung eines langjährig gewerblich genutzten Standorts sowie dessen Weiterentwicklung zu einem attraktiven und lebendigen Gewerbequartier (wissenschaftsnaher Zukunftsort)
- Auftraggeber: Quartier Am Humboldthain GmbH
- Bearbeitungszeitraum: 2022 – 2025
Bildquelle © Cobe A/S, Quartier am Humboldthain GmbH
Ella-Barowsky-Straße/ Wilhelm-Kabus-Straße – Bebauungsplan XI-231abb
Erweiterung Mauerpark – Bebauungsplan 3-64
Hochhausturm am Alexanderplatz (Hines) – Bebauungsplan I-B4a-3
SIKO – Konzept für die soziale Infrastruktur Marzahn-Hellersdorf
Bewertungsverfahren zur Prüfung der Funktionslosigkeit von Fluchtlinienfestsetzungen
Integriertes Entwicklungskonzept Wohnen – Reinickendorf
Kooperationsmanagement für das Netzwerk Herzberg, Schönewalde und Schlieben
Im Bund-Länder-Förderprogramm „Kleinere Städte und überörtliche Zusammenarbeit“ (KLS), Programmplanung, Vorbereitung von Projekten, fördertechnische Abwicklung
- Auftraggeber: Stadt Herzberg (Elster)
- Bearbeitungszeitraum: Laufendes Projekt seit 2014
Bildquelle © GeoBasis-DE/LGB (2024), dl-de/by-2-0, ALKIS-Daten
Gebietsbeauftragte für das Fördergebiet Neukölln-Südring
Sanierungsgebiet Südliche Friedrichstadt
Sanierungsgebiet Warschauer Straße
Gebietsbeauftragte für das Fördergebiet in Herzberg (Elster)
Sanierungsgebiet Traveplatz-Ostkreuz
Sanierungsgebiet Köpenick Altstadt/ Kietz Vorstadt
Projeksteuerung Kita Ruschestraße 80
Dreigeschossiger Neubau in Massivbauweise mit Gründach, Solarthermieanlage für Raumheizung und Warmwasserbereitung, Photovoltaikanlage zur Eigennutzung, Lüftungsanlage mit Wärmetauscher
Projektsteuerungsleistungen u.a. Kosten- und Termincontrolling, Plausibilitätsprüfung von Rechnungen / Nachträgen, Projektabrechnung
- Auftraggeber: Kindergärten NordOst, Eigenbetrieb von Berlin
- Bearbeitungszeitraum: Laufendes Projekt seit 2022
Bildquelle © Imhof & Partner Architektengemeinschaft
Projektsteuerung Kita Havelländer Ring 46
zweigeschossiger Neubau aus überwiegend regenerativen Materialien (Holzständerbauweise, Schafwolledämmung, Holzfassade) mit Gründach und innovativem Energiekonzept (Fernwärme, Photovoltaik-Anlage, Lüftungsanlage mit Wärmetauscher)
Projektsteuerungsleistungen u.a. Kosten- und Termincontrolling, Plausibilitätsprüfung von Rechnungen / Nachträgen, Projektabrechnung
- Auftraggeber: Kindergärten NordOst, Eigenbetrieb von Berlin
- Bearbeitungszeitraum: Laufendes Projekt seit 2021
Landesbeauftragte Gegenprüfung
Städtebauliche Projektsteuerung Neue Mitte Tempelhof
Unterstützung der Verwaltung bei der Entwicklung einer Projektstruktur und eines Projektfahrplans zur Umgestaltung der Neuen Mitte Tempelhof.
- Auftraggeber: Senatsverwaltung für Stadtentwicklung, Bauen und Wohnen
- Bearbeitungszeitraum: 2023–2024
Bildquelle © Teleinternetcafe/Treibhaus Landschaftsarchitektur
Städtebauliche Projektsteuerung Sportforum Berlin
Projeksteuerung Kita Lindenberger Weg 26
Umfassende bauliche und energetische Sanierung eines dreigeschossigen Kindergarten-Typenbau aus dem Jahr 1978 und Neugestaltung der Freiflächen
Projektsteuerungsleistungen u.a. Kosten- und Termincontrolling, Plausibilitätsprüfung von Rechnungen / Nachträgen, Projektabrechnung
- Auftraggeber: Kindergärten NordOst, Eigenbetrieb von Berlin
- Bearbeitungszeitraum: 2012–2015
Blockentwicklungskonzept Provinzstraße/ Bürgerstraße (Block 120) und Fortschreibung
Blockentwicklungskonzept Holländerstraße/ Walderseestraße (Block 167)
Städtebauliches und nutzungsstrukturelles Konzept für die langfristige Konversion eines bisher vorwiegend gewerblich genutzten Blocks zu einem attraktiven Wohnstandort sowie Öffentlichkeitsbeteiligung
- Auftraggeber: Bezirksamt Reinickendorf von Berlin
- Bearbeitungszeitraum: 2018–2019
Bildquelle © Urbanizers und BSM
Städtebauliches Konzept Zossener Straße/ Klausdorfer Straße einschließlich Partizipation
Städtebaulicher Wettbewerb und Rahmenplan Freiham-Nord, 1. Realisierungsabschnitt
Erster Preis für den Bearbeitungsbereich A im begrenzt offenen städtebaulichen und landschaftsplanerischen Wettbewerb nach Auswahlverfahren in Kooperation mit Ortner & Ortner Baukunst (Architektur) und Topotek1 (Freiraum). Weiterentwicklung zum Rahmenplan in Kooperation mit West 8 urban design & landscape architecture (als Preisträger für den angrenzenden Berbeitungsbereich B).
- Auftraggeber: Landeshauptstadt München – Referat für Stadtplanung und Bauordnung
- Bearbeitungszeitraum: 2011–2013
Bildquelle © Ortner & Ortner Baukunst, TOPOTEK 1, West 8 urban design & landscape architecture und BSM
Städtebaulicher Wettbewerb Buckower Felder
Städtebauliches Konzept Landespolizeischule Basdorf
Städtebauliches Konzept Block 74 Boxhagener Straße
Vorbereitende Untersuchungen Schönefeld Nord
Durchführung von vorbereitenden Untersuchungen für die Durchführung einer städtebaulichen Entwicklungsmaßnahme i.S.d. § 165 BauGB im Ortsteil Schönefeld
- Auftraggeber: Gemeinde Schönefeld
- Bearbeitungszeitraum: 2023 – 2025
Bildquelle © Städtebaulicher Entwurf: RHA Reicher Haase Assoziierte, Geobasisdaten: GeoBasis-DE/LGB (2024), dl-de/by-2-0, ALKIS-Daten
Stadtumbaukonzept und Fortschreibung Rathenow
Berechnung von Bevölkerungsprognosen, Erarbeitung eines Stadtumbaukonzepts, von Maßnahmen- und Handlungskonzepten sowie von teilräumlichen Konzepten
- Auftraggeber: Stadtverwaltung Rathenow
- Bearbeitungszeitraum: 2001–2003, fortlaufend Ergänzungen und Fortschreibungen
Bildquelle © BSM, Freitag & Freitag
Integriertes Stadtentwicklungskonzept Herzberg (Elster)
Integriertes Stadtentwicklungskonzept Premnitz
Stadtumbaukonzept Premnitz
Integriertes Entwicklungskonzept Neu-Schmellwitz, Fortschreibung
Bestandsanalyse, SWOT-Analyse, Erarbeitung einer integrierten Entwicklungsstrategie mit Leitbild und Definition von Handlungsfeldern, Erstellung eines Maßnahmenplans sowie Abstimmung von Kosten und Umsetzungszeiträumen
- Auftraggeber: Stadt Cottbus, Fachbereich Stadtentwicklung
- Bearbeitungszeitraum: 2018
Integriertes Stadtentwicklungskonzept Rathenow
Freiraumplanerisches Werkstattverfahren Haus der Statistik/ Haus des Reisens
Städtebaulicher und freiraumplanerischer Wettbewerb Molkenmarkt mit anschließendem Werkstattverfahren
Organisation und Durchführung eines städtebaulichen und freiraumplanerischen Wettbewerbs zur Neubebauung des Quartiers am Molkenmarkt. Anschließende Durchführung eines Werkstattverfahrens mit den beiden Preisträgern zur Weiterentwicklung der Entwürfe.
- Auftraggeber: Senatsverwaltung für Stadtentwicklung, Bauen und Wohnen
- Bearbeitungszeitraum: 2021–2022
Städtebauliches Werkstattverfahren Dragonerareal und angrenzende Bereiche
Wettbewerb zum Neubau eines Wasserspielplatzes
Workshopverfahren Mehring- und Blücherplatz
Machbarkeitsstudie Straßenbahnbetriebshof Tegel
Prüfung der Machbarkeit eines Straßenbahnbetriebshofes auf einer Teilfläche des ehemaligen Flughafens Tegel als Teil einer geplanten Straßenbahnverbindung Turmstraße – Spandau und eines neuen Spandauer Straßenbahnnetzes. Prüfung zweier unterschiedlicher Varianten einschließlich Einbindung in den städtebaulichen Kontext.
- Auftraggeber: Senatsverwaltung für Stadtentwicklung und Wohnen Berlin
- Bearbeitungszeitraum: 2018
Zwischennutzungskonzept für die Gaswerksiedlung
Vorbereitung, Zielfindung und Umsetzung einer vorzugsweise kreativwirtschaftlich geprägten Zwischennutzung der Gaswerksiedlung für einen Zeitraum von ca. 5 bis 10 Jahren, Prüfung von weiteren Nutzungsalternativen, Erarbeitung eines Zwischennutzungskonzepts (in Kooperation mit belius GmbH)
- Auftraggeber: Vattenfall Europe Wärme AG
- Bearbeitungszeitraum: 2015
Vergleichende Standortuntersuchung für einen Sportplatz
Betroffenheitsanalyse Lärm- und Luftschadstoffbelastung der Anwohnerschaft Boulevard Berlin
Analyse und Bewertung zweier Erschließungsvarianten des Einkaufszentrums Boulevard Berlin auf Grundlage der voliegenden Untersuchung zur Lärm- und Luftschadstoffbelastung hinsichtlich Betroffenheit der Anwohnerschaft, Identifizierung einer Vorzugsvariante
- Auftraggeber: Multi Veste Berlin GmbH
- Bearbeitungszeitraum: 2008
Jährlich erscheinender Stadtentwicklungskalender Rathenow
Bürger- und Kinderbeteiligung zur Gestaltung Basdorfer Wiesenpark
Buch 20 Jahre Stadtentwicklung in Herzberg (Elster)
Programmbeauftragte Europa im Quartier und Freiwilliges Engagement in Nachbarschaften
Programmbeauftragte Investitionspakt soziale Integration im Quartier
Unterstützung des Landes Berlin bei Vorbereitung, Durchführung und Abschluss des Bund-Länder-Förderprogramms und bautechnische Betreuung der Fördervorhaben
- Auftraggeber: Senatsverwaltung für Stadtentwicklung, Bauen und Wohnen
- Bearbeitungszeitraum: Laufendes Projekt seit 2017
Bildquelle © BMWSB, SenStadt Berlin
Programmbeauftragte Städtebaulicher Denkmalschutz
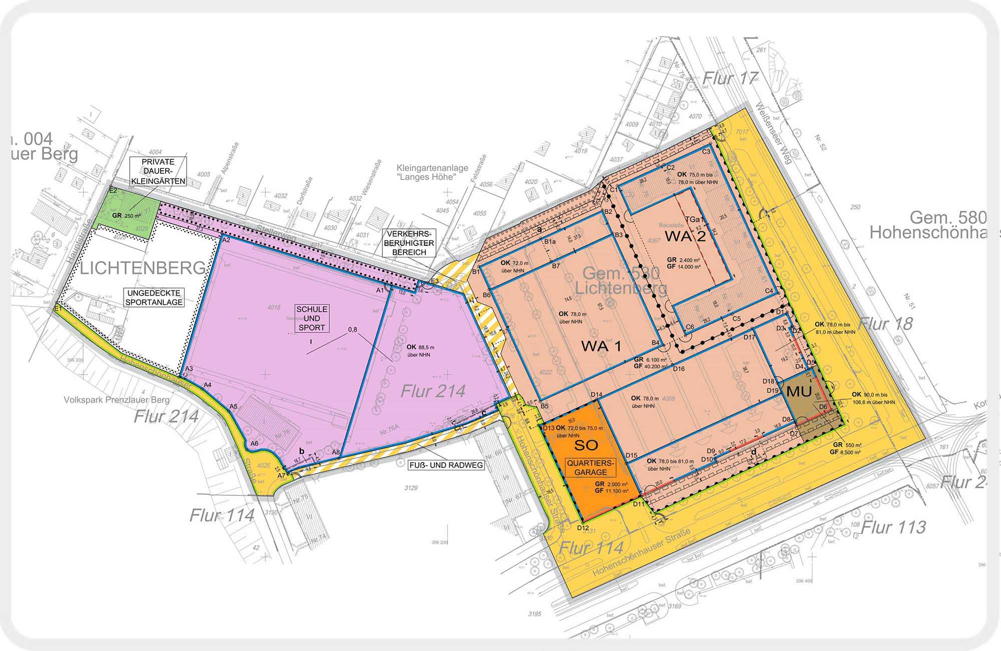
Weißenseer Weg / Hohenschönhauser Straße – Bebauungsplan 11-168
Gartenstadt Karlshorst – Bebauungspläne XVII-50aa und XVII-50aba
Flughafen Tegel – Bebauungspläne 12-50a, 12-50ba, 12-50bb, 12-51
Parkstadt Karlshorst – Bebauungsplan 11-47ba
Nahversorgungszentrum Wachtelfeld – Bebauungsplan F 21, 1. Änderung
Wohnquartier Beelitz-Heilstätten – Bebauungspläne Teilbereiche 1 und 2
Schulstandort Ahrensfelde – Bebauungsplan Gymnasium und Turnhalle mit FNP-Änderung
Stadterweiterung Freiham-Nord – Bebauungspläne mit Grünordnung Nr. 2068, 2083, 2092 und 2154
Schaffung von Planrecht für ein neues Stadtquartier (Wohngebiete mit Stadtteilzentrum, Schulzentrum und Sportpark, Landschaftspark, Autobahnanbindung) auf insgesamt ca. 143 ha am westlichen Stadtrand von München
- Auftraggeber: Landeshauptstadt München
- Bearbeitungszeitraum: laufende Projekte seit 2018, Bebauungsplan Nr. 2068 im Jahr 2015 abgeschlossen
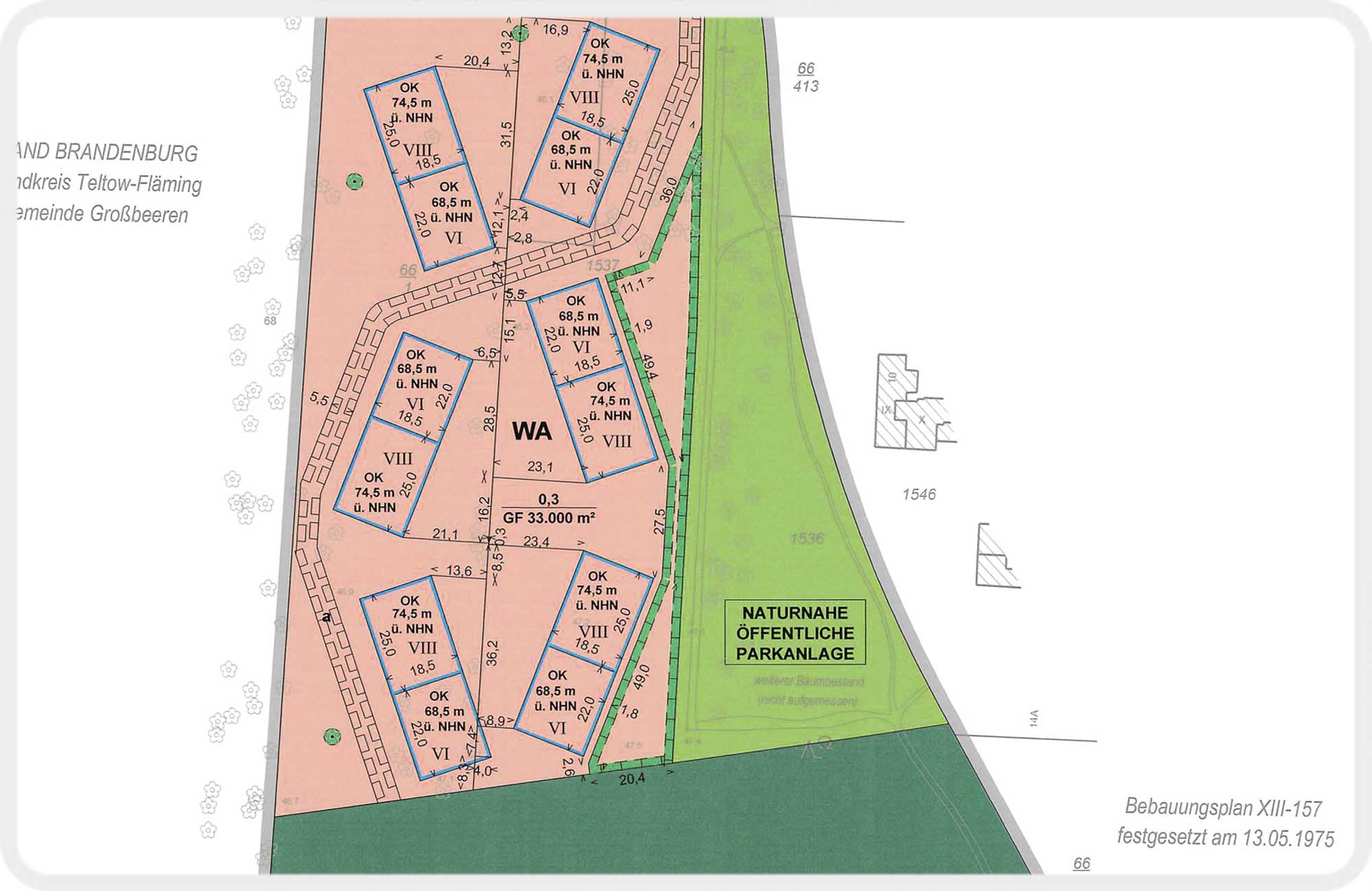
Nördlich Stahnsdorfer Damm – Bebauungsplan KLM-BP-006-e
Klinikum Kaulsdorf – Bebauungsplan 10-50-1
Südkreuz III – Vorhabenbezogener Bebauungsplan 7-100 VE
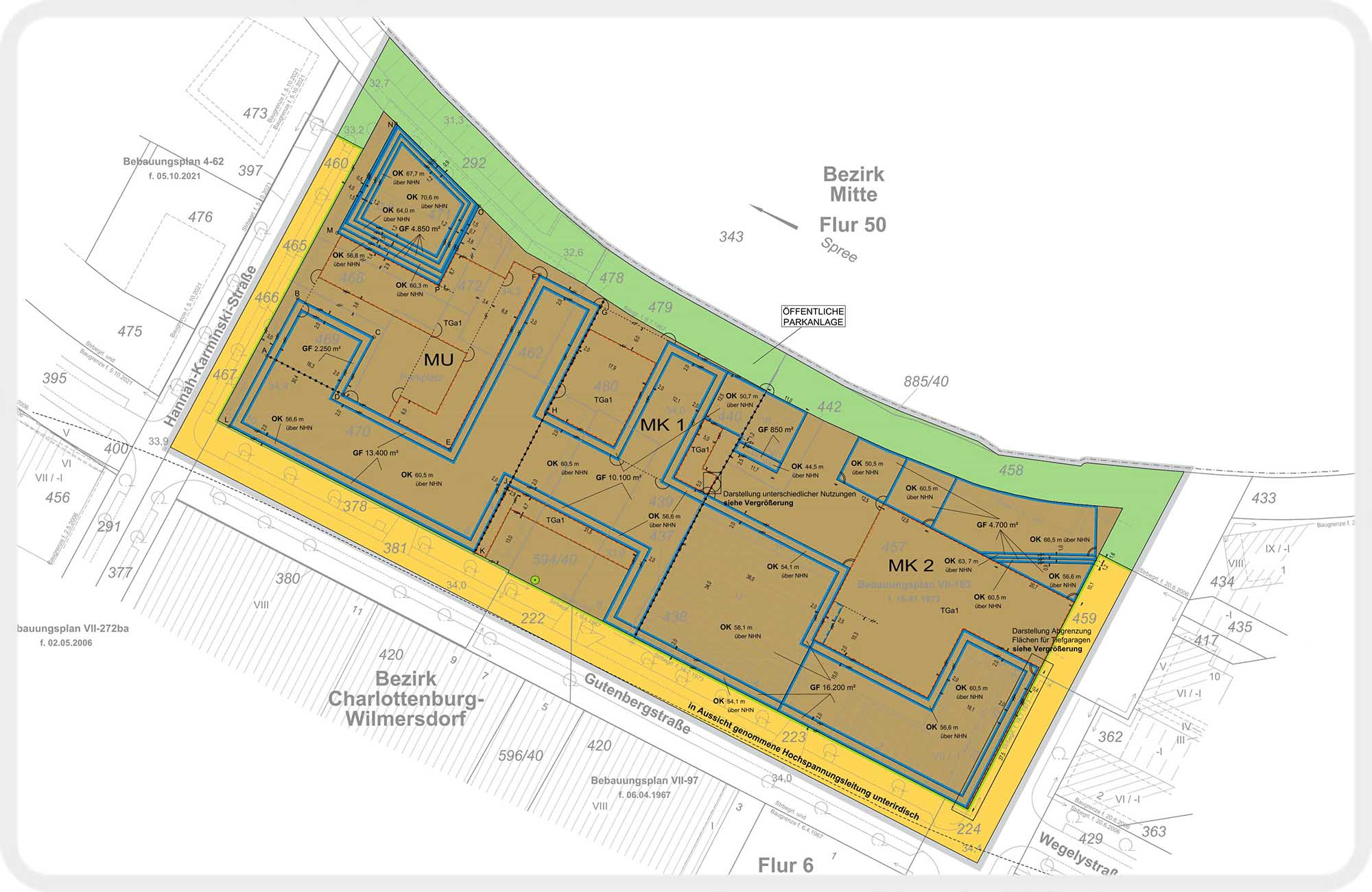
Wohnen und Arbeiten an der Spree – Bebauungsplan 4-60
Schaffung von Planrecht für Wohnungsbau, gewerbliche Nutzungen und öffentlichen Grünzug entlang der Spree (Kerngebiete und Urbanes Gebiet) auf insgesamt 2,0 ha in der sogenannten Spreestadt
- Auftraggeber: Bezirksamt Charlottenburg-Wilmersdorf
- Bearbeitungszeitraum: laufendes Projekt seit 2014, Projektneustart 2019
Gehrenseehöfe – Bebauungsplan 11-165
Wohngebäude Brunsbütteler Damm – Vorhabenbezogener Bebauungsplan 5-117 VE
Wohnquartier Pepitahöfe – Bebauungsplan VIII-48-3
Müggellandstraße – Vorhabenbezogener Bebauungsplan 9-51 VE
Erarbeitung eines vorhabenbezogenen Bebauungsplans zur Entwicklung von Wohnungen unter Berücksichtigung der Berliner Modells der kooperativen Baulandentwicklung mit geringer Flächenversiegelung sowie Waldumwandlung
- Auftraggeber: MHMI Immobilienentwicklungen GmbH
- Bearbeitungszeitraum: laufendes Projekt seit 2018
Neuer Kaufpark Nickern – Bebauungsplan Nr. 3066
Lichterfelder Ring 113/121 – Bebauungsplan 7-92
Erarbeitung eines Bebauungsplans zur Schaffung von Wohnraum unter Anwendung der „Berliner Modells der kooperativen Baulandentwicklung“ mit geringer Flächenversiegelung und Durchführung einer Waldumwandlung
- Auftraggeber: Bezirksamt Tempelhof-Schöneberg von Berlin / Degewo AG
- Bearbeitungszeitraum: 2020 – 2025
Schulzentrum und Gewerbegebiet Westhagen – Bebauungsplan
Grundschule Heinersdorfer Straße / Schmöckpfuhlgraben – Bebauungsplan 3-65
Provinzstraße / Bürgerstraße / Granatenstraße – Bebauungspläne 12-64, 12-68
Erarbeitung zweier Bebauungspläne zur langfristigen Entwicklung eines bislang stark gewerblich geprägten Bereichs am S-Bahnhof „Schönholz“ zu einem urbanen Wohnstandort unter Berücksichtigung vorhandener gewerblicher Nutzungen
- Auftraggeber: Bezirksamt Reinickendorf von Berlin
- Bearbeitungszeitraum: laufende Projekte seit 2018 (12-68) bzw. seit 2020 (12-64)
GE Förderzentrum – Bebauungsplan 12-72
Möbelhaus „An der Autobahn“ – Bebauungsplan B-Lo 13
Erweiterung des Forschungsstandortes Bessy – Bebauungsplan XV-51j-1
Gas- und Dampfheizkraftwerk Klingenberg – Bebauungsplan 11-47a
Schaffung der planungsrechtlichen Voraussetzungen für ein geplantes Gas- und Dampfheizkraftwerk als Ersatz für das bestehende HKW Klingenberg, Reaktivierung innerstädtischer Brachflächen und Bereitstellung von Flächenangeboten für die gewerbliche Wirtschaft, Schaffung eines gewässerbegleitenden Grünzugs entlang des Hohen Wallgrabens und der Spree
- Auftraggeber: Bezirksamt Lichtenberg von Berlin
- Bearbeitungszeitraum: 2009 – 2014
Teilfläche 1 im Industriepark Ost – Tor zum Industriepark Ludwigsfelde – Bebauungsplan Nr. 44-2
